2/12

The Milk Pavilion (Milchbar) in Berlin’s Britzer Garden is an iconic pyramid originally built as a temporary structure for the 1985 German Federal Garden Show. Patalab Architects led its comprehensive restoration and energy efficient retrofit. Our client, Grün Berlin, is a state-owned company focused on sustainable urban development that promotes climate protection and clear social function, for a liveable and sustainable city.

 

 

Sector

Cultural & Community

Location

Berlin, Germany

Date

2021-2024

Client

Grün Berlin GmbH

Area

144m2

Status

Completed

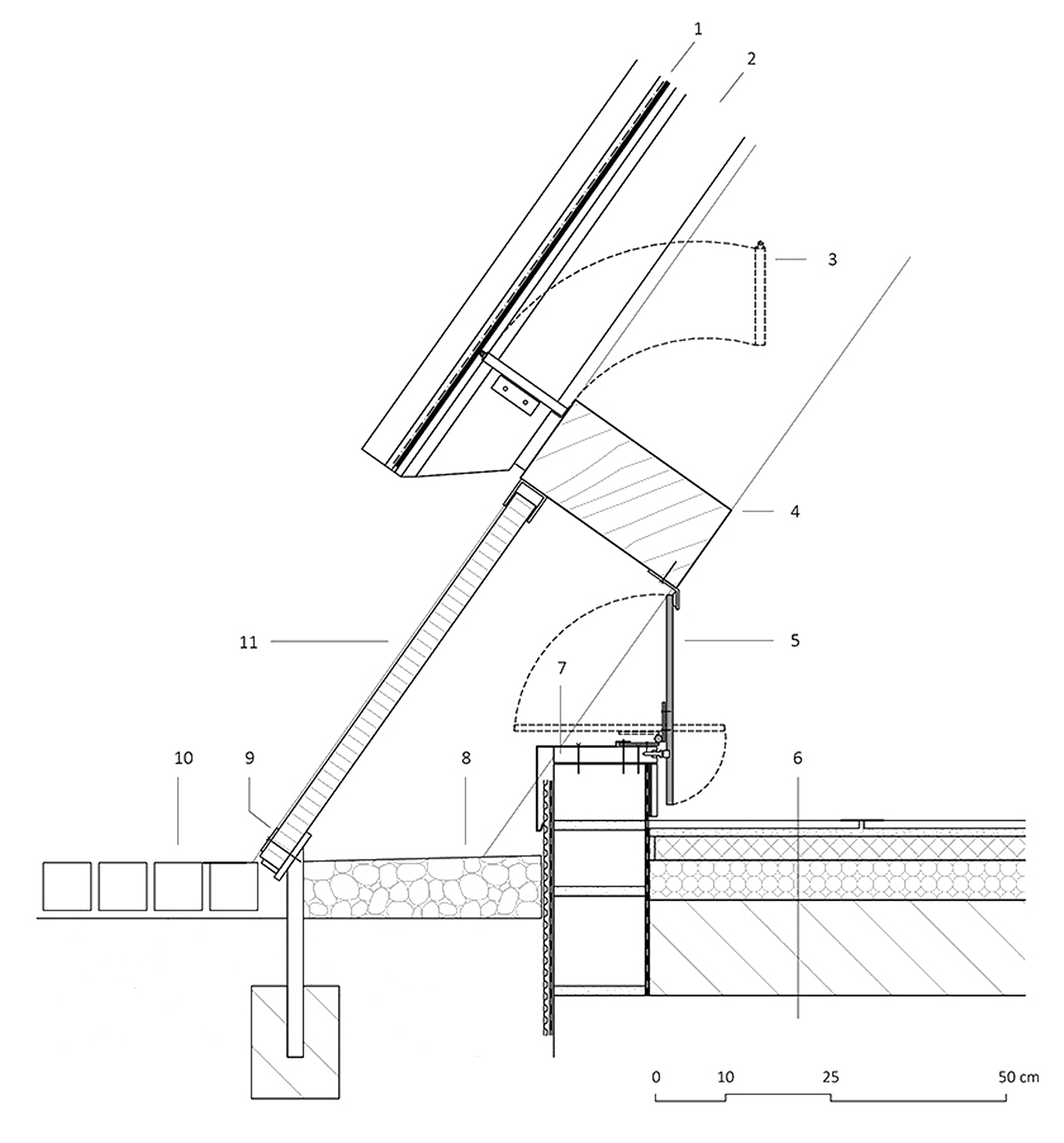
Proposed section

History and Significance of the Milchbar Britzer Garten

Originally designed by Dipl.-Ing. Rogalla & Veit, the pyramid-shaped Milk Pavilion was initially conceived as a temporary highlight for the 1985 German Federal Garden Show. Over the years, it became a permanent and iconic feature of Britzer Garden, standing out as a distinctive landmark in the Neukölln district. Today, the Milk Pavilion is one of the most significant structures in the park. The vision to renovate the pavilion and preserve it for future generations was a key component of the publicly funded “Britzer Garten 2030” project.

Pyramid stack ventilation

Entrance

“With a transformative yet respectful energy-efficient renovation, Patalab Architects have helped preserve the Milk Pavilion as an architectural heritage whilst continuing its historical significance.”

Client Testimonial

Primary public space

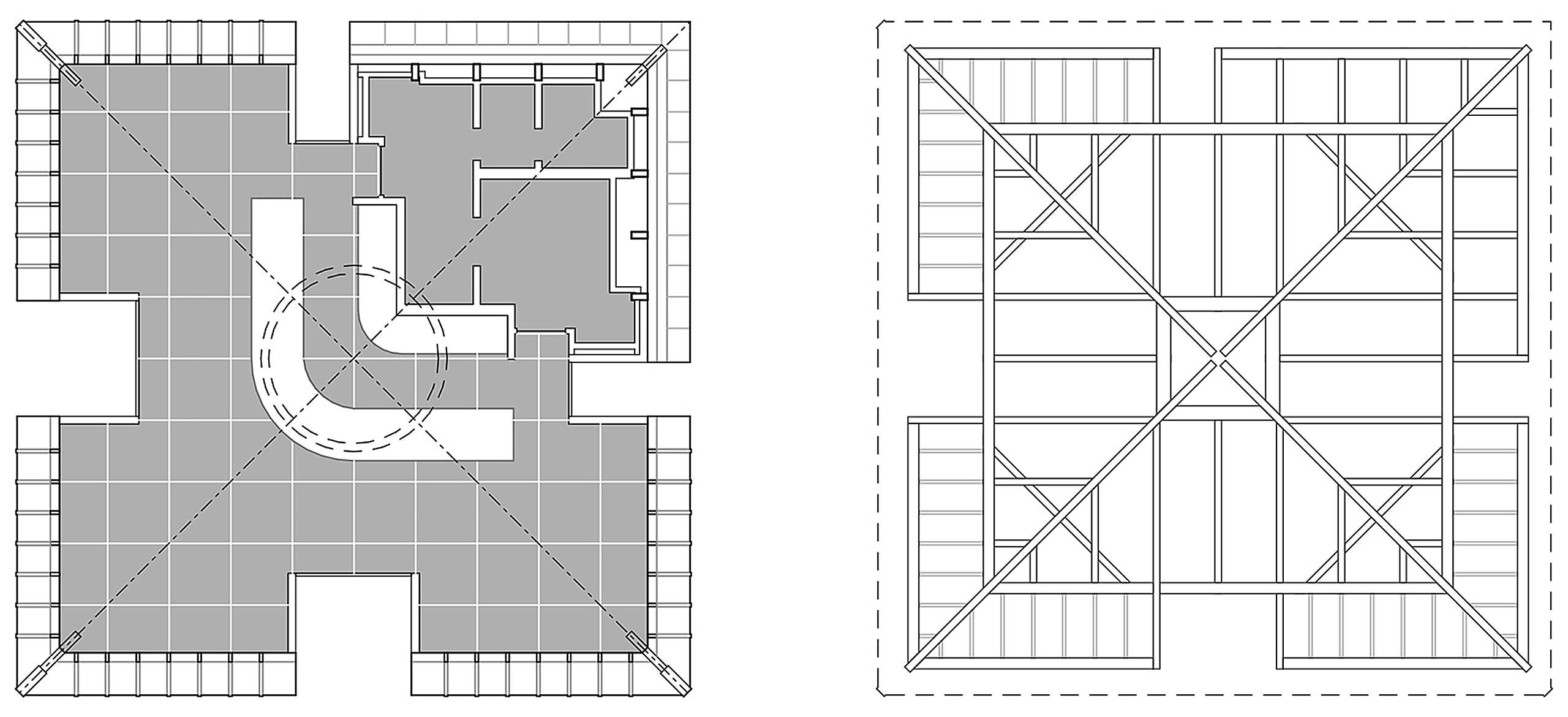
Proposed floor plan and reflected ceiling plan

Glimpse through from private kitchen area to public space and existing timber structure

Heritage Renovation and Modern Standards

The renovation of the Milk Pavilion Britzer Garden focused on the restoration of its original architectural form, such as the striking tent-like roof structure. It also included the integration of modern energy saving solutions. These improvements feature solar protective glazing, insulation, and a passive stack ventilation strategy that operates without consuming energy. Our goal was to maintain the building as a heritage asset whilst simultaneously meeting modern sustainability and accessibility requirements.

Ventilation strategy

Accessible Café at Britzer Garden

A prominent public space, the Milk Pavilion is now fully accessible and offers a welcoming space for all visitors, regardless of mobility limitations. Located near the water labyrinth, a popular children’s play area, the iconic structure of the Milk Pavilion has been preserved and transformed, enabling it to continue as a popular destination within Britzer Garden for future generations.

Plinth detail

Tradition Meets Innovation – Sustainable Solutions for the Future

The Milk Pavilion remains a preserved architectural gem whilst now offering a modern, energy efficient, and accessible visitor experience.

The successful combination of heritage preservation and forward-looking technology highlights how respect for heritage can go hand-in-hand with innovative technical solutions.

Passive ventilation detail

External view through water fountain